今回は基本的な足場図面の描き方を紹介していこう!
色々な足場図面の描き方があるので
これは一つの方法です。
はい!よろしくお願いします!!
初心者なのでわかりやすくお願いします!
足場支柱と布材 足場の建地間隔 布材の高さについて
くさび緊結式足場における先行手すりと布材の使い方と注意点 「作図初心者向け」「現場監督向け」
足場用腕木の正しい設置方法と選定ポイント 【わかりやすい足場解説】
足場の外手摺、中桟手摺、幅木の高さは何cm?労働安全衛生規則の基準と注意点を解説
巾木(幅木)とは?設置基準・種類・注意点を完全解説【法律と仮設工業会基準まとめ】
クサビ式足場の大筋かい・斜材・先行手すりの違いと設置基準まとめ【図解あり】
足場の落下防止対策完全ガイド|現場監督・図面作成者・鳶職人必見
1、足場の種類
足場図面を描く時は
まずどのメーカーの足場で描くかを確認しましょう!
ダイサンというメーカーのビケ足場という設定です
足場メーカー ダイサン ビケ足場
足場サイズ 600mm幅
縦コマビッチ 475㎜ Bタイプ
布サイズ メーターサイズ
階段 外付けダブル組み
注意点1 足場のメーカーによって仕様は異なるので注意が必要です
今後色々なメーカーの図面の描き方を紹介します
注意点2 顧客の方から壁離れの許容範囲を確認してください
今回の顧客様は離れの最小値が200㎜以上のクリアランスが必要
足場の離れはクライアントさんに確認しておかないといけないんですね。
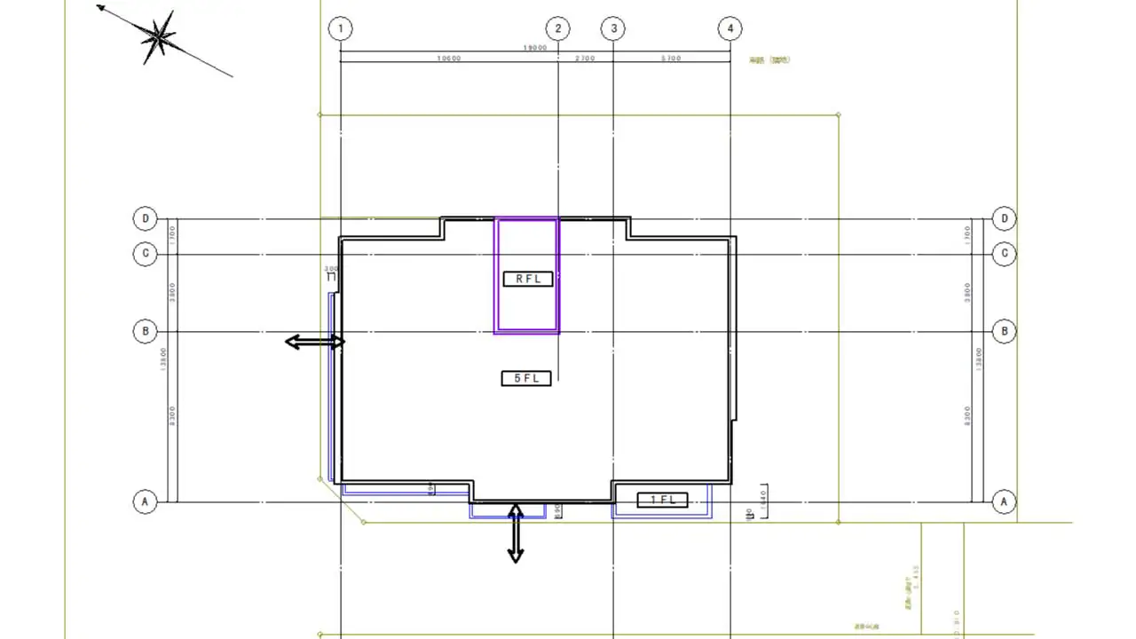
2、今回の建築物
さて今回の物件を見てみよう!
今回の足場をかける建築物は以下の通りです
構造物 RC6階建て2階部分一部バルコニーあり



割り付け方を教えてください!!
ロジクール M575SPは、手首に優しい設計で長時間のCAD作業でも疲れにくいトラックボールマウスです。
クリック音を約80%カットした静音設計と、安定したBluetooth・LogiBolt接続で快適性もアップ。
省スペース&スムーズ操作で、作業効率を高めたいあなたにおすすめです。
快適な作業環境の第一歩に、M575SPをぜひお試しください。
| 機能性 | トラックボールの入門機 持ち運びやすい |
|---|---|
| 使いやすさ | 軽いので使いやすい。単三電池で機能する |
| 価格 | コスパは最高! |

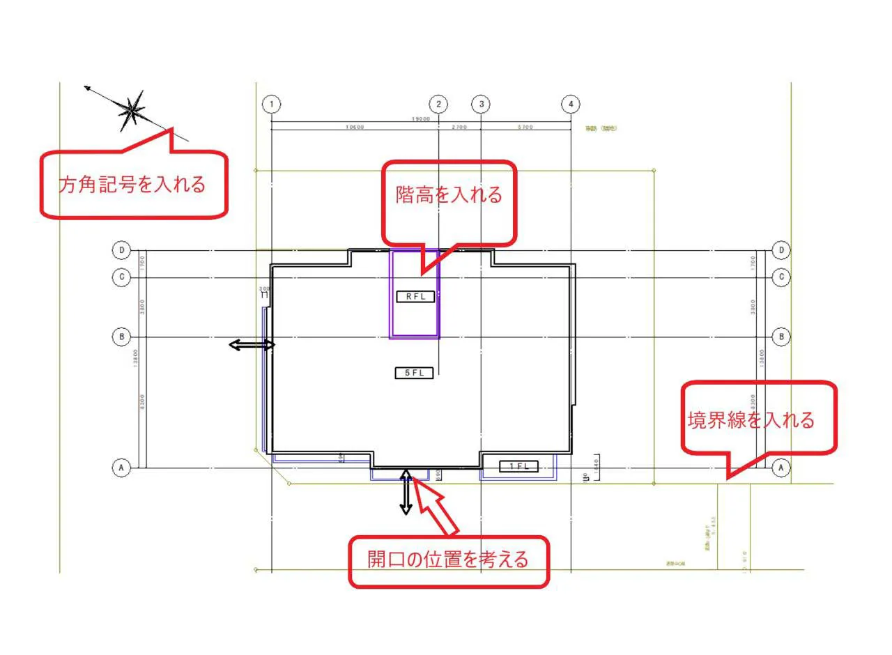
3、敷地を把握する
どんな図面を書くにしても必ず入れておくべき情報があります!!
何を入れたらいいんですか?

平面図作成前に把握する敷地条件と前提情報
1、方角記号を入れる
2、境界線を入れる
境界線から足場が出る場合解決方法を考えるため
3、開口部を考える
人の出入り、資材の搬入など動線を考えます
4、階高を入れる
平面図を見たときに高さの違いを理解するため
4、足場を割り付ける
1、足場の離れ
基本的には壁から300㎜離します。
くさび足場は枠足場と違い平面図で隙間無くすことが大切です。(どうしても必要なときは足場板で調整します)
できるだけ隙間を入れないよう壁離れを調整します。
一度壁から300㎜離して建物を回すように線を引きます

2、足場の大まかなラインを描く
次に
今回は幅600mmの足場ですから暫定の足場ラインを描きます。
下の図を見てください!

内側にW300㎜のブラケットを入れましょう!これで壁離れ300㎜ 足場600㎜のラインが描けました
どのように配置するかを確認することが出来ますね!どこに足場が入るかがわかります!!
3、コーナーについて
まずコーナーの収まりについて理解しておこう!
くさび足場と枠足場では考え方が違います。
下の図を見てください!

枠足場での割り付けは
壁離れを優先して足場のコーナーの収まりを
足場板やコーナーステップなどで納めることが出来ます。
つまり足場の離れをすべて300mmにすることが出来ます。
上の図のように枠足場では
隙間をコナーステップや足場板で調整します
しかし
くさび足場は布板を
できるだけコーナーで足場板などでの調整をするのではなく
壁離れを調整して足場全体を割り付けます。
布材は 長さが
1800㎜、1500㎜(1500㎜が無いメーカーがある)、
1200㎜、900㎜、600㎜
とあるので
この布板を組み合わせて割っていきます。
という事は
必ず壁離れが300㎜にならない
ことが多いという事ですね!
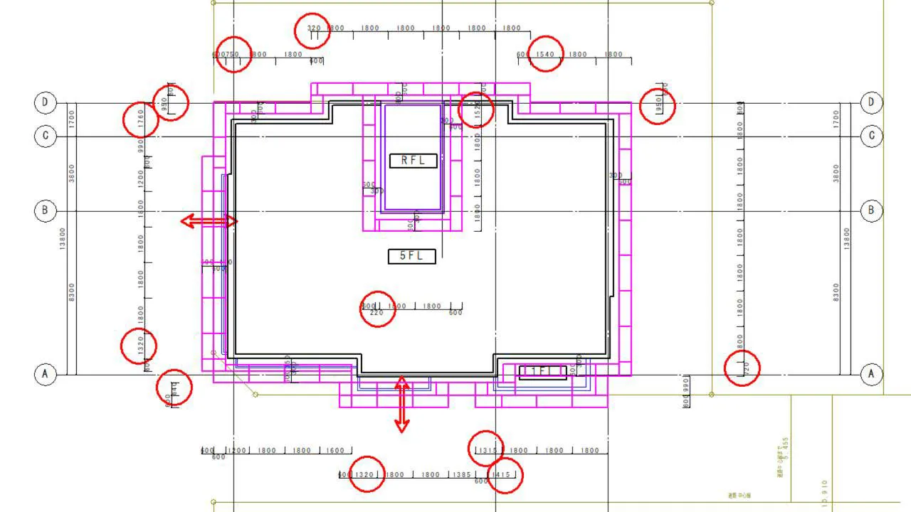
4、1800mmでとりあえず割っていく
では続けて先ほどの図面で足場のピッチを1800㎜で割っていこう!!すると下の図のようになります。

1800㎜で割っていくと、
当然きれいに割れきれない部分が出てきます。
赤の丸の部分が割り切れていない部分です。
次に
布板で調整していきます
布材の長さには
1800㎜、1500㎜(1500㎜が無いメーカーがある)、
1200㎜、900㎜、600㎜
があるので近い数に変えて割り付けを変更していきます。

この図のように
真物が入る長さに変えていきます。
注意!
外壁から内足場の離れは300㎜が理想ですが調整すると300㎜ではなくなります。
壁離れ250㎜から350㎜になるのが理想です。
(今回はクライアントさんの指示は壁離れ200㎜までOK!ということです)
詳しく安衛則563条を見ても
壁離れが300㎜でなければならないとは書かれていないのですが
作業効率からめ手も壁離れ250㎜から350㎜は妥当だといえます。
もし350㎜を超えても落下防止材を設けることによって安全性を確保できます。
これでとりあえず真物が入るように割ってみます。

するとこの図のように必ず調整が必要な部分が生じます
この場合、壁離れ130㎜とあまりにも狭いので300㎜足して430㎜とします
右にある1500㎜の布材は1800㎜に調整します。
するとこうなります!!

この赤い○部分が調整されます
「図面の基礎をしっかり固めたい」「足場図面の理解を深めたい」という若手監督・設計者に役立つ、図面読解の入門書です。 JISに準拠した図面知識を、現場感を交えてわかりやすく学べます。

- 図面の読み方・描き方の基礎を実例ベースで理解できる
- JISに準拠した寸法、投影法、断面図、公差、材料記号を体系的に学べる
- 施工図・仮設図・足場図の「寸法の拾い方」や「形状の理解」にも応用しやすい
- 機械・プラント製図技能士にも対応した内容で、図面技術の底上げに最適
私は足場図面を描く時、「断面図・寸法・投影法の理解」が弱いとミスが増えると痛感しています。 この本は、その基礎部分をしっかり補ってくれる一冊です。 仮設の図面が苦手な若手にも、とてもおすすめです。
【是正・指摘・確認漏れを防ぐ】
クサビ式足場 現場チェックリスト(実務用PDF)
クサビ式足場の現場で起きやすい 「見落とし」「確認不足」「是正指摘」を防ぐための
現場実務向けチェックリストです。
現場確認・社内チェック・元請説明など、
そのまま現場で使える内容に整理しています。
- PDF①:組立・設置チェックリスト(2025年版)
- PDF②:規格・寸法チェック表(2025年版)
※ ボタンを押すとメール登録画面が開きます
※ 登録後、確認メール内のリンクからPDFを受け取れます
※ メールが届かない場合は迷惑メールフォルダもご確認ください
5、離れの全体のバランスを考える
壁離れの調整をしていきましょう!!まず平面図の上部分の壁離れと
下部分の壁離れを見てみましょう

Aの離れは350㎜
Bの離れは300㎜
Cの離れは430㎜
Dの離れは380㎜
上下に足場全体を動かそうと思ったのですが
Aの離れとCの離れの平均は
350㎜+430㎜÷2=390㎜です
AとCの離れを390㎜にすると離れすぎです
それで上方向300㎜縮めてみることにしました

こうなります!!

Aの離れとCの離れが240mmとなります
少し狭い感じがしますが許容範囲です!
理想は300㎜ですが、お客さんは200㎜までならOK!!という事なのでこれで決めます。
クライアントに確認しないといけない
という事ですね!!
6、左右をバランスよく配置する
上下のバランスを取りましたので
今度は左右のバランスをとっていきましょう!!

全体に右に寄せたいのですが
(Eは240㎜なので
60㎜右に寄せて300mmにしたいのですが)
Gの離れが200㎜ Hの離れが200㎜なので右に寄せると
Gの離れが200㎜以下となり問題発生です。
今回はそれでこのまま動かさないことにします。
Fの450㎜の部分は落下防止材を入れることによって対応することにします。
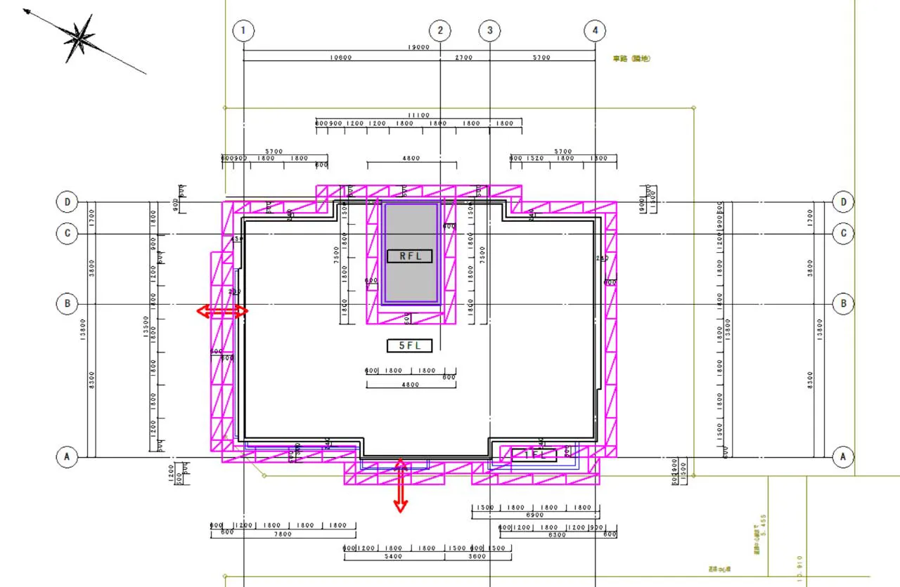
7、割り付けの調整
足場の離れが決まっています。ここからもっと細かく割っていきます。

足場を割り付けるときのおすすめの方法は
上の階から順に割り付けていくことです。
それは
下の階から割り付けていくと上部で調整が利かないことが多いからです
特にコーナー部分の収まりが悪く
壁つなぎを配置するときに問題が発生します。
壁つなぎの耐力が持たなくなるような事が起きないようにしましょう!
これは安全面でとても重要です。
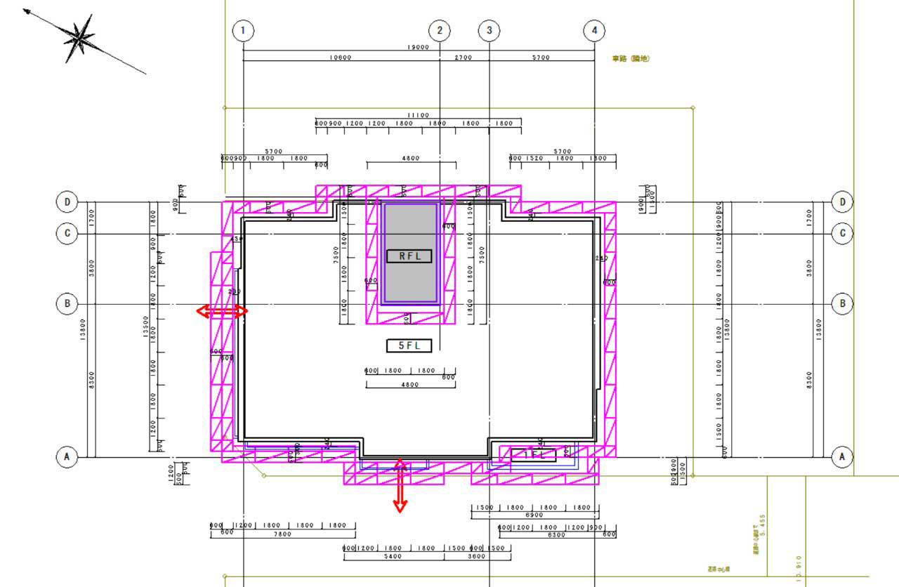
今回の建物の場合下の絵の部分がとても重要な個所になります。


大まかな割り付けをしたのですが
RFLとの兼ね合いがきれいに割れていないので
調整します
もうすでに真物の布板が入るようになっているので
布材を入れ替えるだけで割り付けられます!!
割り付けていきましょう!!

この黄色い部分を
すっきり割り付けができました。
RFLのコーナー部分がきれいに割れていますね
黄色い部分は他の部分より高くなる部分だという事がわかりますか?
はい!
イメージが出来ます!!
次にRFL部分を中心に周りの部分を
W600㎜できれいに割り付けていきます
下の図に注目してください!!

なるほど!
黄色い部分を続いて割り付けてられたのですね!!
割り付けが決まったら
割り付けの合計寸法を入れていきます
続けてコーナの割り付けに気を付けながら全体を割り付けていきましょう!!
またW600㎜のブラケットが
どのように入るのか考えながら割っていきましょう!!

クサビ式足場のチェックリスト(無料PDF)を受け取る
下のボタンを押すとメール登録フォームが開きます。 登録後、確認メール(ダブルオプトイン)のリンクをクリックすると、 PDF2種類(組立チェック/規格チェック)を受け取れます。
- 無料PDF①:組立チェックリスト(2025)
- 無料PDF②:規格チェック表(2025)
そうだね!でもまだ
梁枠、階段、壁つなぎなど入れないといけないので
続きは次の記事で紹介します。
はい!
ありがとうございます。!!
作図をする時に私が愛用しているトラックボールです!
今まで4台続けて購入しています!
良かったら試してみてください!!!
足場支柱と布材 足場の建地間隔 布材の高さについて
くさび緊結式足場における先行手すりと布材の使い方と注意点 「作図初心者向け」「現場監督向け」
足場用腕木の正しい設置方法と選定ポイント 【わかりやすい足場解説】
足場の外手摺、中桟手摺、幅木の高さは何cm?労働安全衛生規則の基準と注意点を解説
巾木(幅木)とは?設置基準・種類・注意点を完全解説【法律と仮設工業会基準まとめ】
クサビ式足場の大筋かい・斜材・先行手すりの違いと設置基準まとめ【図解あり】
足場の落下防止対策完全ガイド|現場監督・図面作成者・鳶職人必見
「現場で飛び交う用語を、もう一度きちんと整理したい」という時に便利な、オールカラーの用語図鑑です。
- イラスト中心で、現場でそのまま使える解説
- 足場・仮設だけでなく 建築一式の用語をカバー
- 図面記号や部材名の正式名称を確認するのに便利
私は、新人さんに足場や仮設の用語を説明する時の「共通の物差し」としてこの本をよく使っています。図面と一緒に見せるとイメージが伝わりやすいです。
まとめ
2、建物の確認3、平面図を描く時に方角記号などを入れる4、壁離れを300㎜して一周線を描く5、真物の布板で割り切れるように壁離れを調整する6、建物の上の階から割り付けていく7、コーナーがきれいに割り切れているか確認する
参考にして頂ければ嬉しく思います!!
立面図の書き方は以下のリンクで紹介しています
手首の負担を軽く、作業効率を大きく。
MX ERGO S(MXTB2d)は、スイスのエルゴ・ラボが開発した人間工学設計のトラックボールマウス。
自然な角度で手を支え、長時間のCAD作業でも疲れにくい快適な操作性を実現。
静音クリックで集中力を高め、独自の「Logi Bolt」テクノロジーにより、混線しやすい環境でも安定・高セキュリティな接続を提供。複数デバイスの同時接続にも対応しています。
快適な作業環境を求めるプロフェッショナルに、最適な一台です。
| 機能性 | 80%静音クリック&Logi Bolt対応で、快適&安全な接続を実現。 |
|---|---|
| 使いやすさ | 自然な角度と親指操作で手首への負担を軽減、長時間作業も快適。 |
| 価格 | 高性能ながら17,500円で、プロの作業効率を支える価値ある一台。 |
※作成日 :2021年10月10日 更新日
:2024年11月17日 内容更新
:2025年12月14日 無料ダウンロード付
:2025年12月17日 画像Webnp化
👤この記事の執筆者/監修 ISHIDA DESIGN OFFICE 代表 I.D.O(仮設設計技術者/足場組立作業主任者)
- 建設業歴30年以上。仮設設計・点検・講習の実務経験有。仮設設計技術者。
- 厚労省・仮設工業会の最新基準に基づき執筆
仮設設計・CAD作図・構造チェックのご依頼はこちら: ISHIDA DESIGN OFFICE 公式サイト







